VR在线体验
2022广州建博会
2022北京展厅
2021广州建博会
2019广州展会
2019北京展会
2019公司展厅
2018北京展会
线下最近体验店>>
官方微信
|
天猫旗舰店|
经销商入口
深蓝下单地址
联汇软件
内部网盘资料
|
400-1888-600
首页
关于我们
产品中心
室内门系列
厨卫门系列
阳台门系列
其他门系列
五金辅料
全屋定制
杜拉特材料
火博(中国)动态
公司动态
优惠快讯
行业资讯
经典案例
工装类
精装类
其他类
加盟合作
联系方式
联系方式
优惠活动
公司动态
Company dynamics
您的位置:
首页
>
火博(中国)动态
>
公司动态
>
文章详情
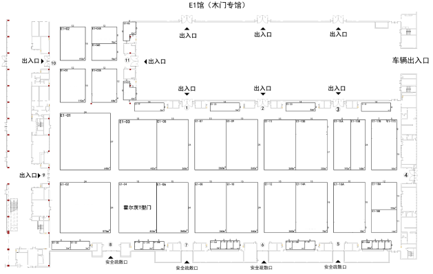
2018年中国国际门业展览会《霍尔茨》招标文件
作者:霍尔茨 发布时间:2017-10-17 类别:公司动态 阅读:
一、招标项目:
吉林森工北京霍尔茨门业第十七届中国国际门业展览会将于2018年3月在北京顺义区天竺裕翔路88号(中国国际展览中心)举办,目前该展览会展台设计搭建项目将进行公开招标来确定施工单位,现特邀各专业展览施工单位前来投标。
1、展会名称:第十七届中国国际门业展览会
2、展台位置:E1-04(净面积24米*18米=432平米)
3、布展时间:2018年3月18日—20日
4、展览时间:2018年3月21日—24日
5、撤展时间:2018年3月24日(下午半天)
二、展台设计要求:
(一)、招标日程
1、发布时间:2017年8月25日(发布展台设计及布展招标书)
2、投标时间:2017年8月25日—9月25日(提交设计方案和报价)
3、投标方式:邮件文件发送
4、投放邮箱:345642482@qq.com
5、评审时间:2017年9月26日—10月25日(标书设计方案评审)
5、开标时间:2017年10月30日(确定合作公司,公布中标结果)
(二)、设计内容要求:
1、具备单独木门展示区域,配套展示木制类产品在家庭中的应用,如:墙挂板、家具、地板等产品,预计展示客厅、卧室、书房等实景空间,软硬装配套相结合。
2、秉承吉林森工上市国企产品品质;德国技术与中国文化结合,环保材料与工艺融合;荣获“
生态原产地
产品保护”标志,坚持环保生态企业之路。
3、大气、简洁、温馨、区域划分清晰,最直接体现产品功能展示。
4、整体区域要求有洽谈区、产品展示区。
5、要求整体展位创新、有吸引点。
6、展位:E1-04(432平米=24米*18米)一面开口,18m面是主通道。
7、配有液晶电视播放宣传片。
8、公司主经营木门产品、墙挂板、家具、地板。
9、木门类具体展品数量:25樘-35樘。
10、全屋定制家具2种以上形式展示。
单开门门洞尺寸:2380高*930宽*200厚
特种规格门洞尺寸:
2900高*3400宽*450厚(1樘)全风挡推拉(层高)
2900高*1800宽*200厚(1樘)平开联动门(层高)
(三)、标书要求
1、展台应能反映企业形象,突出企业的特点与优势,展示公司实力,吸引观众关注并方便参观者观看。
2、设计重点:主调为黑色,视觉感官传达“德式、T型门”。
3、展台布置科学、利于流动、讲解、洽谈、接待,设计新颖合理。
4、整个展台搭建要以绿色环保、节约为主。
三、招标说明
此次展会各展览公司自愿参与,我方不负责投标公司在招标过程中的任何费用,投标方应保证作品无版权问题,如出现版权争议或其他问题,由展览公司自行解决,我方将永久取消其竞标资格及以后其他项目的合作。展览公司需有三年以上搭建经验。
为便于开展投标准备工作,各展览公司可登陆我公司网站了解公司相关信息。请各公司在2017年9月25日前将设计方案和报价发送到指定邮箱。为节省时间,没有报价的方案将不予考虑。
四、联系方式:
投放邮箱:345642482@qq.com
联系电话:010-61503806(周经理)
公司网址:www.endlesscollagen.com
公众号平台:
霍尔茨木门
2017年8月24日
北京霍尔茨门业股份有限公司
附件:
1、霍尔茨logo
2、展台平面图。
企业logo
2018北京门展平面图
2018上海展会平面图
分享:
返回动态列表
上一篇:
霍尔茨公益行第2站,“爱+生态”
下一篇:
霍尔茨木门:十五年君子豹变,终究破茧化蝶
推荐阅读
【端午节专题】霍尔茨居然
您用过粽叶制作的木门和家具吗?芦苇是最早被记载的粽叶,东汉的许慎在《说文解字》中这样解释,粽,芦叶裹米也。
室内木门品牌:霍尔茨T型门
很多业主在装修时,面对市场众多鱼龙混杂的木门品牌,会陷入这样纠结的选择:究竟哪个品牌的木门更有保障、更能满足我们各方面的需求?小编偷偷告诉你,真的有这么一个木门
华体网页版登录界面
|
乐动平台app官网
|
开云足球
|
众博在线
|
多盈在线官网
|
华体app注册入口
|
荣耀最新官网首页
|
火博官网
|
荣耀体育
|